%
  • Projeto

    Casa Vértice
  • Local

    Curitiba - PR
  • Área

    285m²
  • Ano

    2020
  • Fotografia

    Brenda Pontes
  • Fotos Aéreas

    João Victor Sarturi
  • Estrutura

    Marco Antônio Rodrigues

Descrição

Localizada em um condomínio horizontal na cidade de Curitiba, a Casa Vértice foi projetada sobre um lote nada comum: uma frente estreita, de aproximadamente 11 metros, que se abre em “V” na direção dos fundos. Entre os pedidos dos clientes, o mais importante era um grande jardim.

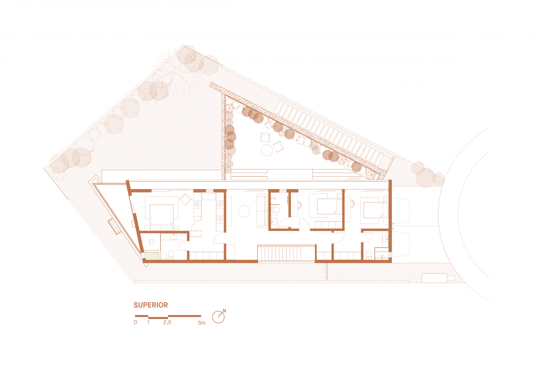
Com um programa definido para a família, casal e dois filhos, o volume projetado foi dividido em dois pavimentos, tendo a implantação o objetivo de liberar o máximo de espaço externo ensolarado e privado.

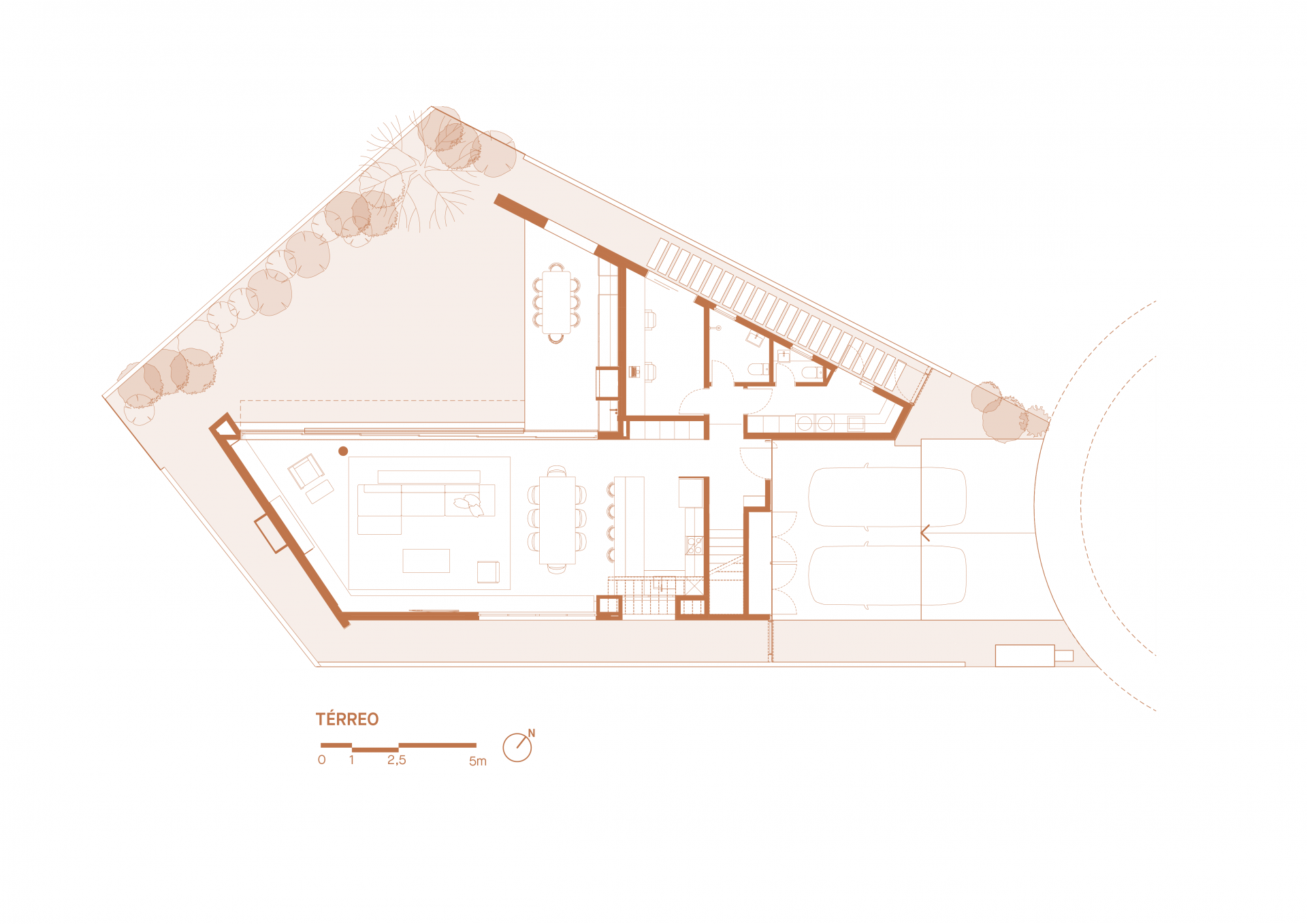
A partir da posição do volume, os espaços no térreo foram organizados por três elementos principais de vedação e contenção do programa, com materialidades distintas. O painel de madeira da empena frontal define o limite privativo, contendo em si a porta de entrada, depósitos da garagem e o acesso de serviço; as duas paredes em pedra moledo se projetam para o jardim interno marcando os limites da casa, desdobramentos dos afastamentos laterais obrigatórios.

No térreo, o espaço conformado pelas paredes externas é preenchido com o programa social, serviço e um escritório. Na lateral direita do lote, temos o acesso secundário, a área externa da lavanderia e a conexão do escritório com o gramado. A área social se abre para o jardim principal, protegido e orientado para o norte, garantindo insolação e ventilação, bem como a interação das salas de estar, lareira, jantar e churrasqueira, através de uma grande abertura.

No volume superior é distribuída a área íntima. A posição e dimensão das aberturas nesse pavimento foram projetadas buscando as melhores situações de conforto, sendo o projeto testado e adaptado para a melhor eficiência térmica. Com o resultado da análise, temos um conjunto de soluções aplicadas, como paredes duplas, ventilações cruzadas e venezianas móveis para controle de luz e sombra. Os ambientes principais desse andar têm relação direta com o exterior através de um grande terraço privativo, resultante da sobreposição dos volumes criados.

A casa conta também com sistemas inteligentes de consumo de água quente e energia solar.

Por fim, o lote que se apresenta tão contido no seu ponto inicial, abre-se, abraça e acolhe a casa e seus moradores, oferendo calor, privacidade e o tão desejado jardim.

Este site usa cookies para fornecer a funcionalidade necessária do site, melhorar sua experiência e analisar nosso tráfego.
Ao usar nosso site, você concorda com nossa Política de Privacidade e uso de cookies.