%
  • Projeto

    Casa Torrão
  • Local

    Colombo - PR
  • Área

    303m²
  • Ano

    2022
  • Fotógrafo

    João Vitor Sarturi

Descrição

O ser humano, enquanto habita, é um ser habitante. A casa vivida carrega a noção de pertencimento e revela a essência de quem nela mora. É nela que se constroem relações, projetam-se sonhos e evocam-se memórias e imaginários.

Assim, pensar uma casa é traduzir modos de vida em espaço construído. Na Casa Torrão, essa reflexão ganha forma em um terreno retangular de 390 m², com orientação leste/oeste, situado em uma rua residencial de Colombo (PR). Para a primeira casa projetada dos clientes, um casal maduro na faixa dos 50 anos, já com filhos e netos, o principal desejo era ter um grande jardim e, ainda assim, espaços generosos para reunir as quatro gerações da família.

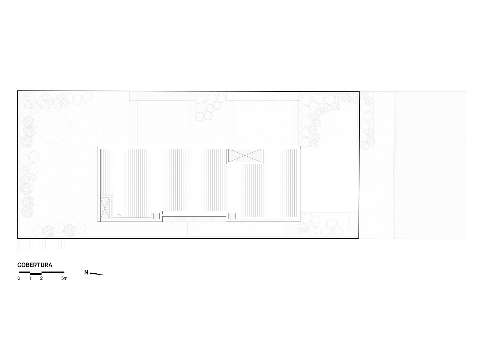
Com a intenção de preservar o máximo possível de jardim ensolarado, projetou-se uma casa de 303 m², dividida em dois pavimentos. A edificação surge como um único volume sólido e puro, refletindo a união familiar e imaginada para atravessar gerações. A proposta partiu da desconstrução de um bloco de argila crua, sua volumetria foi esculpida à medida que os usos se revelavam. A subtração e adição de prismas criou aberturas em busca de luz, ventilação e garantia de privacidade aos moradores.

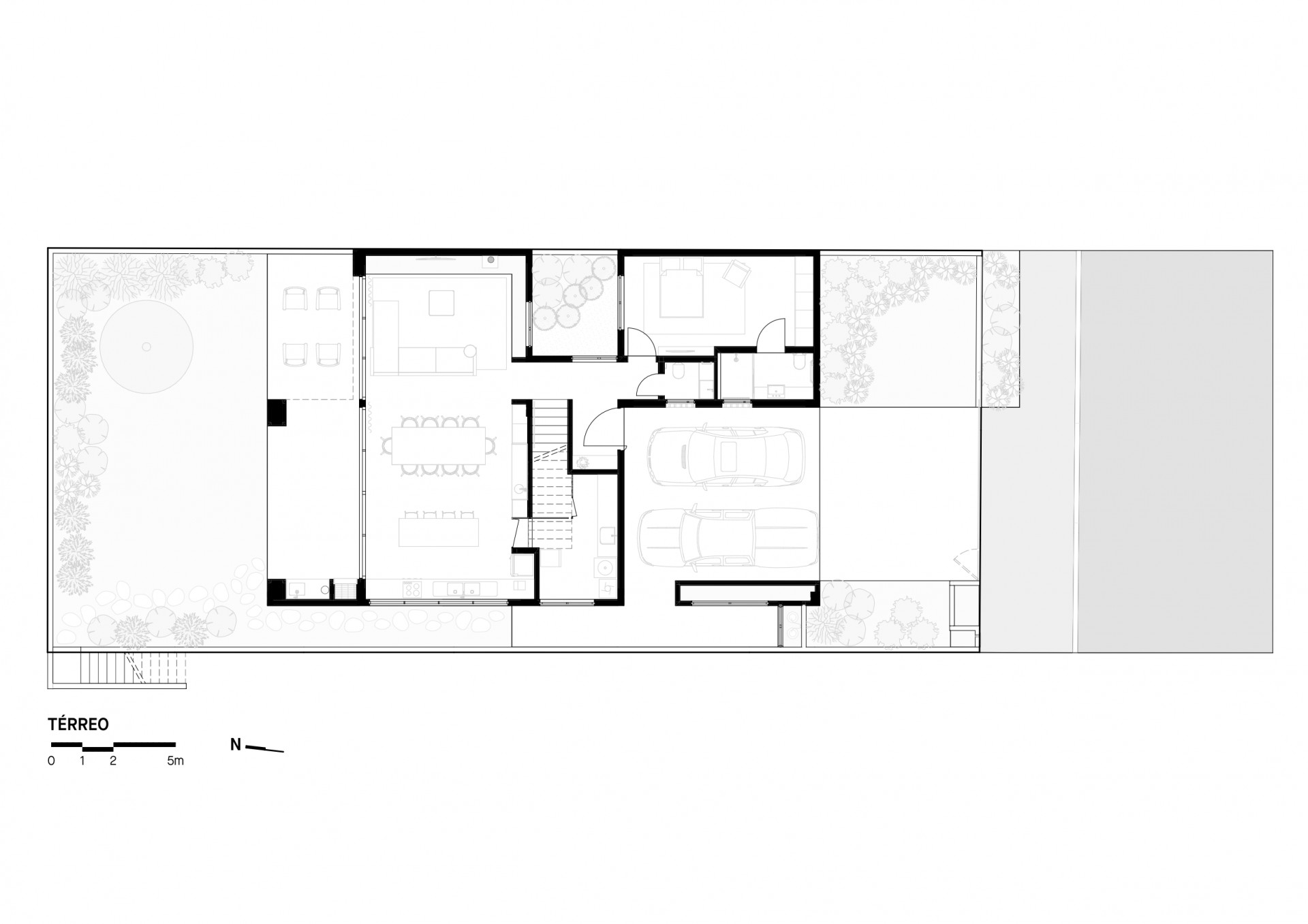
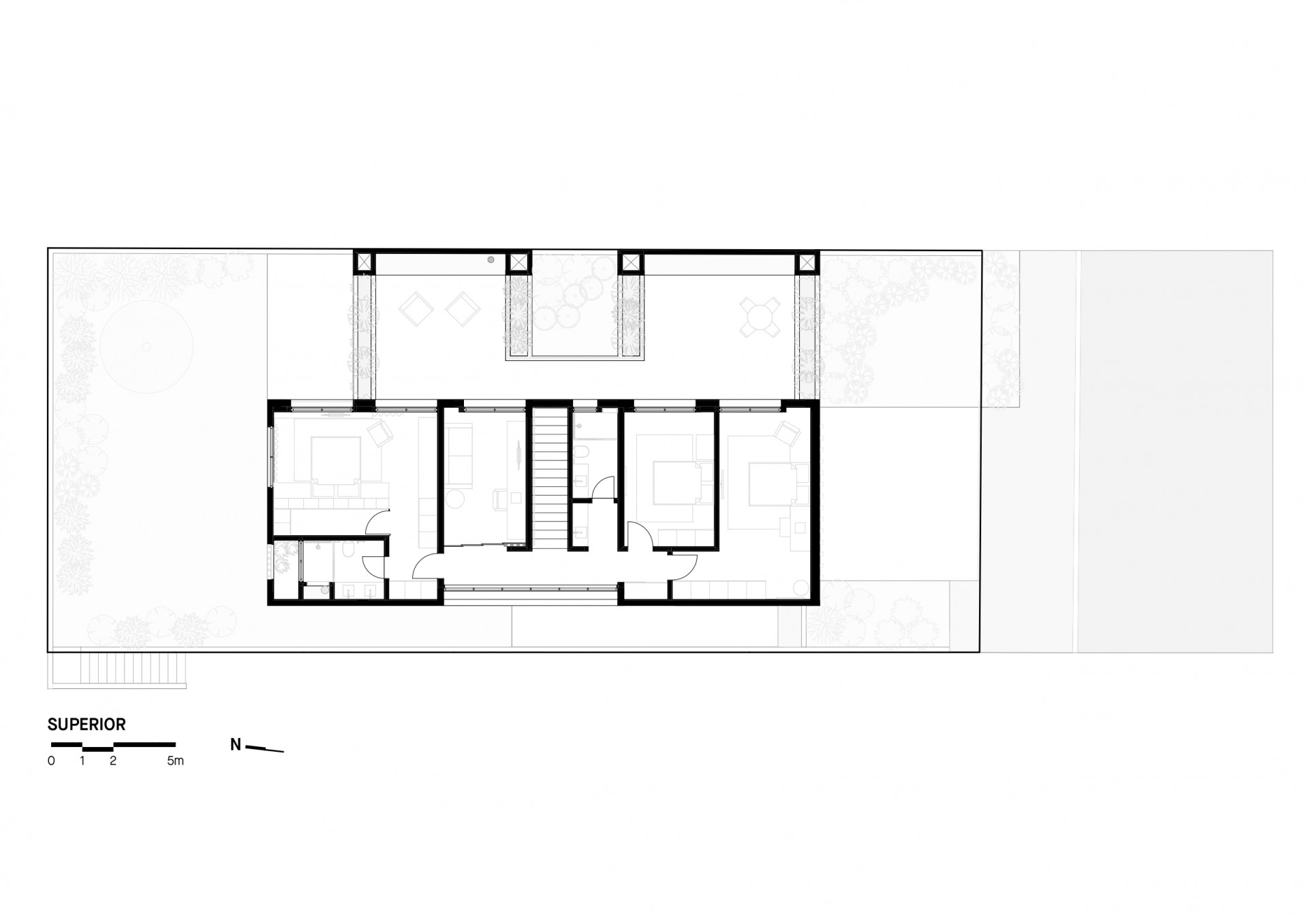
No térreo organiza-se o amplo espaço social, com cozinha, jantar e estar integrados, delimitados por grandes panos de vidro que, quando abertos, expandem esses usos para o jardim. Ainda nesse pavimento encontram-se a área de serviço, a garagem e uma suíte destinada à avó, com jardim privado. No pavimento superior situa-se a área íntima, onde todos os quartos têm acesso a um terraço comum destinado à conversa e ao chimarrão no final da tarde.

O uso de apenas um revestimento externo, em plaquetas cerâmicas, reestabelece a conexão da construção com a escala humana, além de contrastar com o entorno, uma paisagem caótica e desornada. O material ora é aplicado de forma plana na fachada, ora intercalado com tijolos cerâmicos, ora se expande em relevo; ao evitar uma textura homogênea, evidencia-se o gesto construtivo, algo empilhado, colocado, assentado. A textura viva brinca com a luz do sol, criando diferentes sombras ao longo do ano e convidando moradores e transeuntes a permanecerem atentos ao momento presente.

Assim como o nome sugere, a Casa Torrão é um retorno às origens, tanto pelo seu contexto urbano e sua materialidade, quanto pela sua essência familiar. Afinal, a casa de uma mãe sempre será sempre entendida como o primeiro lugar, aquele a partir do qual nos lançamos ao mundo e, de alguma forma, retornamos.

Este site usa cookies para fornecer a funcionalidade necessária do site, melhorar sua experiência e analisar nosso tráfego.
Ao usar nosso site, você concorda com nossa Política de Privacidade e uso de cookies.