%
  • Projeto

    Otto
  • Local

    Curitiba, Brasil
  • Área

    1693m²
  • Ano

    2024
  • Incorporadora e Construtora

    Baltic
  • Estrutura

    Procalc
  • Fotografia

    Eduardo Macarios

Descrição

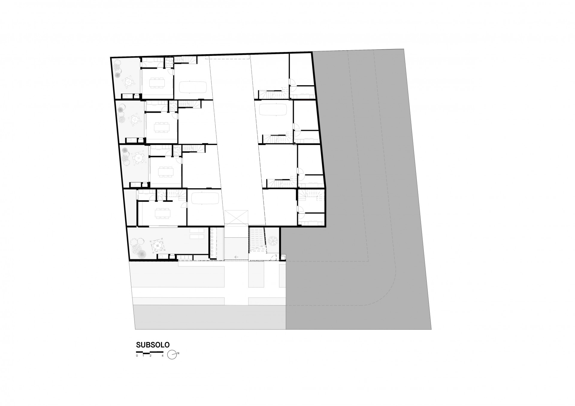
Condensar e atravessar. Permear o que é sólido. Sobre um lote de esquina que conforma um desnível entre duas vias se projeta um conjunto de oito casas em série que busca confrontar esses conceitos que parecem antagônicos.

 

A unidade formal do projeto trata o conjunto como um único bloco contínuo. No entanto, esse volume é rasgado ao centro, criando um vazio que organiza os acessos e fluxos das habitações. O vazio gerado por esse miolo é também preenchido pelo movimento dos moradores para criar espaços de encontro entre os habitantes. O desnível do terreno permite que o acesso de veículos ocorra pelo nível inferior, onde se localizam as garagens, depósitos e áreas de serviço. Assim, o pavimento térreo eleva-se como uma grande praça interna com floreiras, bancos e acessos diretos às áreas sociais das casas, reforçando a ideia de vilarejo ao criar aberturas para esse centro que permitem o atravessamento de visuais, maior insolação e ventilação cruzada nos ambientes.

 

Os muros de divisa recebem um revestimento de pedra que busca consolidar a ideia de solidez da base. Já o volume superior é coberto por placas cimentícias e painéis de madeira, que contrastam com as texturas do térreo. As aberturas recuadas, além de trazerem profundidade, abrigam floreiras. Na esquina, uma janela em ângulo evidencia a continuidade da fachada e suaviza a volumetria ao revelar sua permeabilidade.

 

A arquitetura emerge, assim, como mediação entre unidade e fragmento, articulando o vazio central como potência organizadora do espaço, revelando novas possibilidades de convivência e habitação.

Este site usa cookies para fornecer a funcionalidade necessária do site, melhorar sua experiência e analisar nosso tráfego.
Ao usar nosso site, você concorda com nossa Política de Privacidade e uso de cookies.