%
  • Project

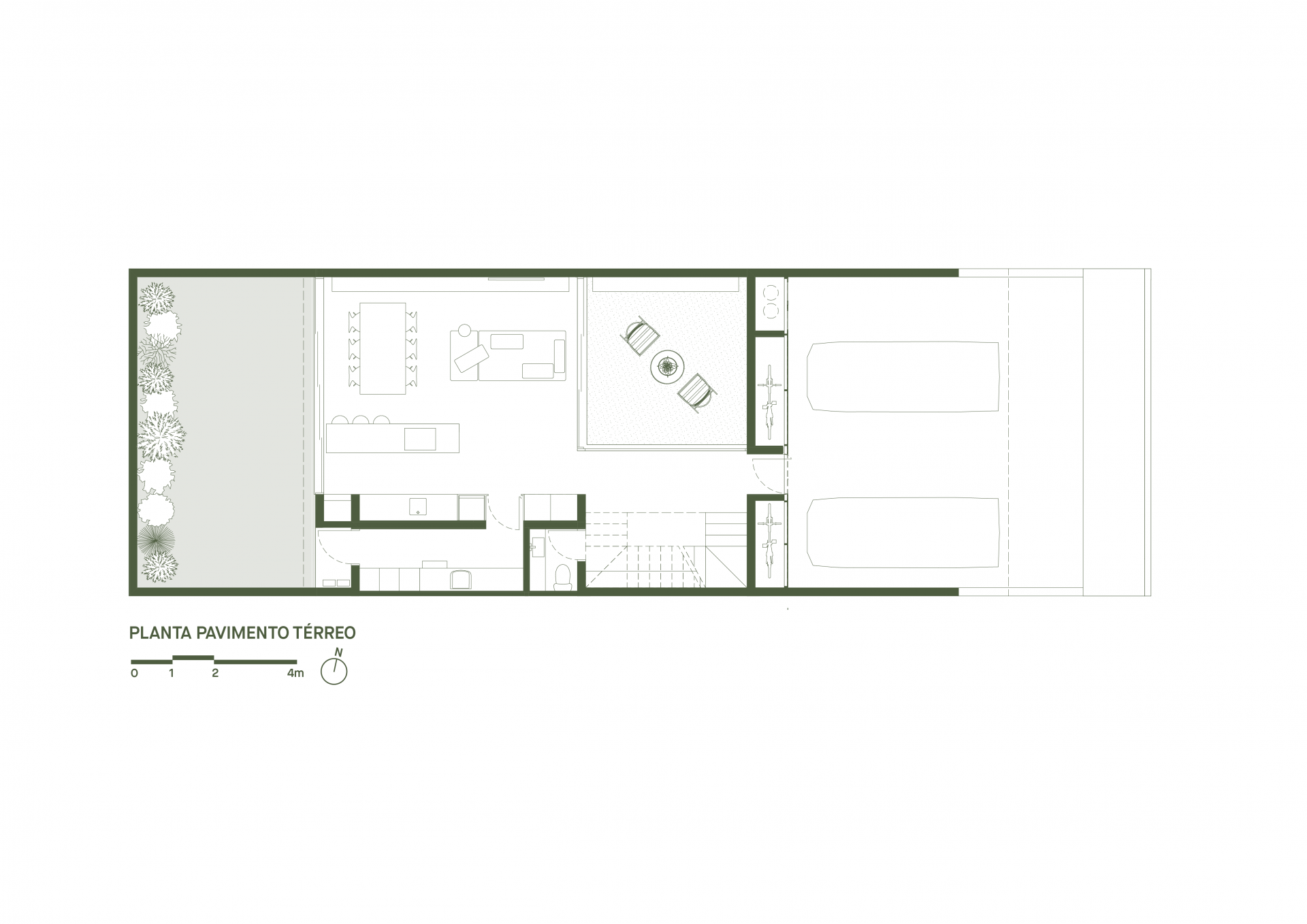
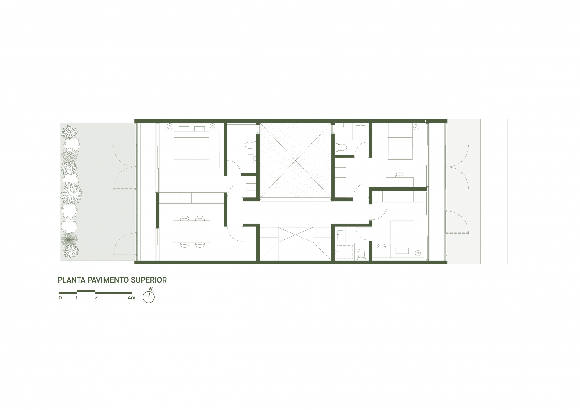
    Bosque House
  • Local

    Curitiba, Brasil
  • Area

    224m²
  • Year

    2023
  • Interiors

    Boscardin Corsi
  • Construction Company

    Altar

This website uses cookies to provide necessary website functionality, improve your experience and analyze our traffic.
By using our website, you agree to our Privacy Policy and our cookies usage.